Terrain + Maison sur cugnaux - 3 pièce(s) avec terrain de 600 m² 288350 €
Caractéristiques
Réference
TMAM015685A4AD9CE0
Superficie terrain
600 m2
Viabilisé
Oui
Surface maison
70
Nombre de pièces
3
Nombre de chambre
2
Prix
288 350 €
Description de l'annonce
Informations du terrain : Situé dans un quartier calme et desservis par les transports et ramassage scolaire, ce terrain offre un environnement calme tout en restant proche du centre de CUGNAUX et de ses commodités.
Le terrain est vendu entièrement viabilisé : Eau + Électricité + Assainissement + Fibre – Les travaux d’aménagement seront réalises et terminés début Avril 2026. Les permis de construire pourront être déposés à la suite.
Assainissement : Tout à l’égout
CUGNAUX – Villa T3. Dans un environnement calme, sur ce terrain de 600 m², à CUGNAUX, apporté par notre partenaire foncier sous réserve de disponibilité, confiez la construction de votre maison à Villas et Maisons de France, un constructeur reconnu et avec un process de haute qualité environnementale. Venez découvrir les coulisses de la conception de votre maison et rencontrez les dessinateurs-métreurs de notre bureau d'étude, spécialiste de la maison individuelle, basés dans nos locaux, à Toulouse ou à Bordeaux. Projet ambitieux ou petite maison traditionnelle, vos plans seront ajustés à votre convenance et respecteront votre budget.
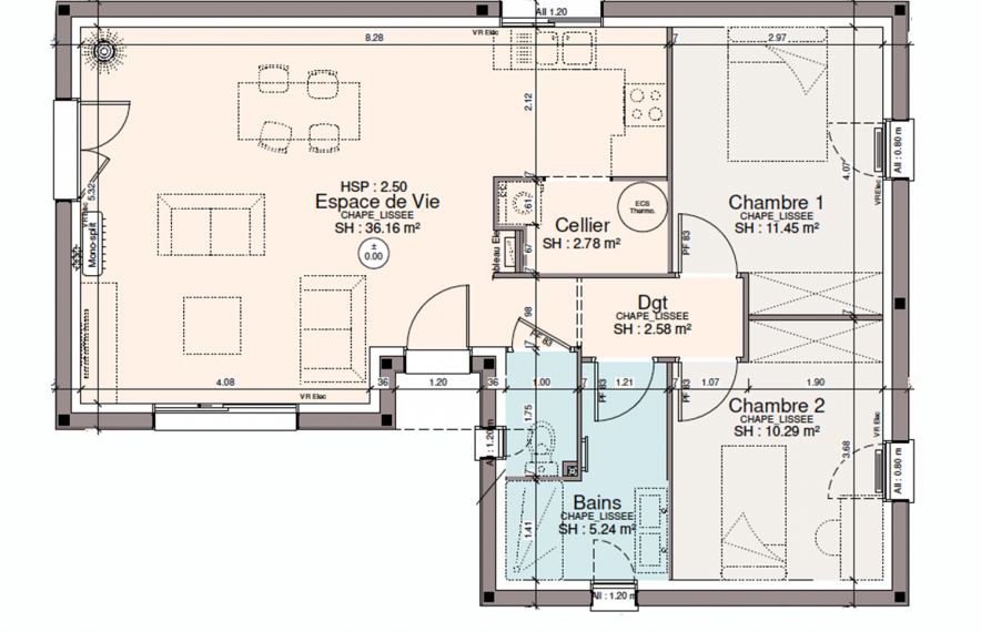
Traditionnel stylisé, le modèle Carène proposé ici, de 70 m² habitables, comprend une partie jour dotée d'une pièce de vie lumineuse de 36 m², agrémentée d'une cuisine ouverte avec cellier accolé. Côté nuit, le confort est assuré par 2 chambres ergonomiques, une salle de bain spacieuse et des WC séparés.
Certifié Properméa et avec un process de haute qualité environnementale, Villas et Maisons de France réduit l’empreinte carbone de votre construction. RE 2020, étiquette énergie A, qualité du traitement de l’étanchéité à l’air, tri sélectif et valorisation des déchets sont garantis et contrôlés. Votre interlocuteur dédié vous assistera dans vos démarches (financement, permis de construire et acte authentique d’acquisition du terrain). Dès l'ouverture de votre chantier, suivez en temps réel et en images, l'avancement de vos travaux avec votre Espace Client Privilège.
Notre Contrat de Construction de Maison Individuelle vous confère Garantie de Livraison, Assurance Décennale Dommages Ouvrage, Garantie de Parfait Achèvement et Biennale. Pour une construction sûre et durable, contacter Arnaud MERCIER au 06 20 74 42 73, spécialiste de la Maison sur-mesure.
Prix avec assurance dommages-ouvrage comprise, VRD non compris, terrain viabilisé, frais de notaire non compris, frais divers non compris. Terrain sélectionné et vu pour vous sous réserve de disponibilité et au prix indiqué par notre partenaire foncier. Plans contractuels, visuels non contractuels.
je suis intéressé(e) par cette annonce






